Sportsko rekreacijska zona Lovački dom

Primorsko-goranska županija
English Italiano
 
Vrsta projekta: Turizam i rekreacija Općina Punat
back
Nositelj projekta: Općina Punat
     
 

Lokacija

Općina Punat, 2 km udaljeno od naselja Punat prema naselju Stara Baška

Vlasništvo

Pretežno Republika Hrvatska, a manji dio privatne osobe

Procijenjena vrijednost projekta: 5.000.000 EUR

Značaj projekta

Sportsko rekreacijska zona Lovački dom izgraditi će se u svrhu razvijanja turističke i sportske ponude u Općini Punat. Izgradnjom planiranih zona oformila bi se polivalentna, multidisciplinarna zona s mogućnošću odvijanja raznih aktivnosti.

Projekt podrazumijeva izgradnju

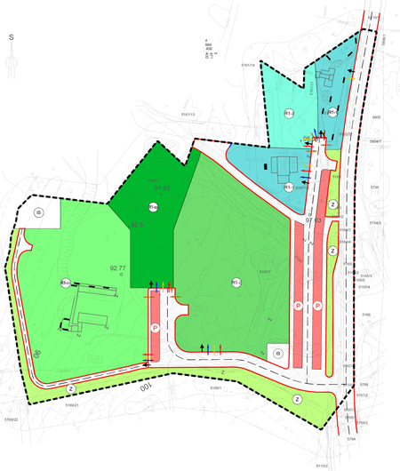
Unutar površine obuhvaćene Urbanističkim planom razgraničene su slijedeće namjene:

  • sport i rekreacija – građevine zatvorenog tipa (R1-z), površine 0,59 ha,
  • sport i rekreacija – građevine otvorenog tipa (R1-o), površine 0,93 ha,
  • ugostiteljski sadržaji (R1-1), površine 0,22 ha,
  • vidikovac (R1-2), površine 0,12 ha,
  • zaštitne zelene površine (Z), površine 0,16 ha,
  • površina infrastrukturnih građevina (IS), površine 0,05 ha,
  • prometne površine, površine 0,52 ha,
  • parkiralište (P), površine 0,11 ha.

Model realizacije

Otvorene mogućnosti pregovaranja s potencijalnim investitorom.

Pripremljena dokumentacija

Dokumenti prostornog uređenja:

  • Projekt je sukladan prostorno-planskoj dokumentaciji.

Kontakt osobe

Emerik Derenčinović, pročelnik
Općina Punat
Telefon: +385 51 854 140
Mobitel: +385 98 258 690
E-mail: emerik.derencinovic@opcina.punat.hr

Daniel Strčić, referent za imovinu, gospodarstvo, predpristupne fondove i javnu nabavu
Telefon: +385 51 854 140
Mobitel: +385 99 6000 013
E-mail: daniel.strcic@opcina.punat.hr

Model

Regionalna razvojna agencija Porin d.o.o. • Info točka za investitore
Telefon: +385 51 634 330 • Faks: +385 51 634 340 • E-mail: rraporin@porin.hr • Web: www.porin.hr